+38 (0562) 35-66-24
Клапаны регулирующие сальниковые с МИМ 25с6бр (НО), 25нж6бр (НЗ) УФ 65080
23
Клапаны регулирующие
https://www.promarmatura.info/en
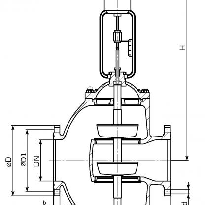
Клапан регулирующий сальниковый с МИМ 25с6бр, 25нж6бр DN 300 PN 40
АО "Армапром"
ТУ У 29.1-00218325-015-2002
Аналог
25с6бр, 25нж6бр
Материал корпуса
сталь 20Л, 25Л, 12Х18Н9ТЛ, 10Х18Н9Л
Температурный диапазон
от -40 °C до 50 °C
Массогабаритные характеристики
DN
L, мм
D, мм
h, мм
H, мм
m, кг
DN, мм
300
L, мм
850
D, мм
510
h, мм
-
H, мм
2065
m, г
850
Комплектация электроприводами
DN
Тип привода
Мощность, кВт
Масса, кг
Производитель привода
