+38 (0562) 35-66-24
Клапаны регулирующие с МИМ 25с28бр, 25нж28бр УФ 65083
23
Клапаны регулирующие
https://www.promarmatura.info/en
Клапан регулирующий с МИМ УФ 65083 / 25с28бр (НО), 25нж28бр (НЗ) DN 50 - 250 PN 40
АО "Армапром"
ТУ У 29.1-00218325-015-2002
Аналог
25с6бр, 25нж6бр
Материал корпуса
Сталь 20Л, 25Л, 12Х18Н9ТЛ, 10Х18Н9Л
Температурный диапазон
от -40 °C до 50 °C
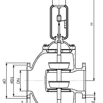
Массогабаритные характеристики
DN
L, мм
D, мм
h, мм
H, мм
m, кг
DN, мм
50
L, мм
230
D, мм
160
h, мм
-
H, мм
840
m, г
56
DN, мм
150
L, мм
480
D, мм
300
h, мм
-
H, мм
1300
m, г
217
DN, мм
250
L, мм
730
D, мм
445
h, мм
-
H, мм
1920
m, г
550
Комплектация электроприводами
DN
Тип привода
Мощность, кВт
Масса, кг
Производитель привода
