+38 (0562) 35-66-24
Клапаны регулирующие с ЭИМ 25с903бр, 25нж903бр УФ 68014
23
Клапаны регулирующие
https://www.promarmatura.info/en
Клапан регулирующий с ЭИМ 25с903бр, 25нж903бр DN 50 - 300 PN 40
АО "Армапром"
ТУ У 29.1-00218325-015-2002
Аналог
25с903бр, 25нж903бр
Материал корпуса
ТУ У 29.1-00218325-015-2002
Температурный диапазон
от -40 °C до 40 °C
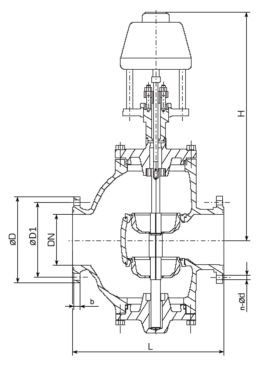
Массогабаритные характеристики
DN
L, мм
D, мм
h, мм
H, мм
m, кг
DN, мм
50
L, мм
230
D, мм
160
h, мм
-
H, мм
545
m, г
80
DN, мм
150
L, мм
480
D, мм
300
h, мм
-
H, мм
688
m, г
220
DN, мм
250
L, мм
730
D, мм
445
h, мм
-
H, мм
1260
m, г
735
DN, мм
300
L, мм
850
D, мм
510
h, мм
-
H, мм
1658
m, г
968
Комплектация электроприводами
DN
Тип привода
Мощность, кВт
Масса, кг
Производитель привода
