+38 (0562) 35-66-24
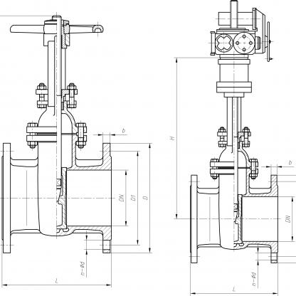
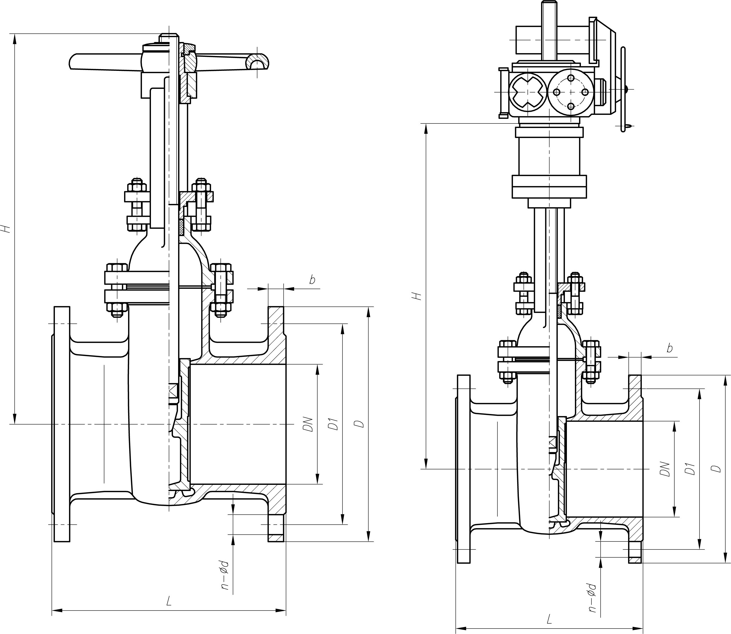
Задвижки чугунные параллельные двухдисковые МЗ 16010
17
Задвижки
https://www.promarmatura.info/en
Задвижка чугунная параллельная двухдисковая МЗ 16010 DN 50 – 400 PN 10
АО « Армапром »
ТУ У 29.1-00218325-012-2001
Массогабаритные характеристики
DN
L, мм
D, мм
h, мм
H, мм
m, кг
DN, мм
50
L, мм
180
D, мм
160
h, мм
-
H, мм
290
m, г
10,6
DN, мм
80
L, мм
210
D, мм
195
h, мм
-
H, мм
262,5
m, г
17,6
DN, мм
100
L, мм
230
D, мм
215
h, мм
-
H, мм
412,5
m, г
21,09
DN, мм
150
L, мм
280
D, мм
280
h, мм
-
H, мм
560
m, г
43,2
DN, мм
200
L, мм
330
D, мм
340
h, мм
-
H, мм
742,5
m, г
83,6
DN, мм
250
L, мм
450
D, мм
395
h, мм
-
H, мм
805
m, г
130
DN, мм
300
L, мм
500
D, мм
445
h, мм
-
H, мм
1045
m, г
178
DN, мм
350
L, мм
530
D, мм
500
h, мм
-
H, мм
1175
m, г
272
DN, мм
400
L, мм
600
D, мм
565
h, мм
-
H, мм
1278
m, г
422
Комплектация электроприводами
DN
Тип привода
Мощность, кВт
Масса, кг
Производитель привода
