+38 (0562) 35-66-24
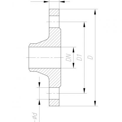
Фланцы стальные приварные встык ГОСТ 12821-80 ГОСТ 12821-80
26
Фланцы
https://www.promarmatura.info/en
Фланцы стальные приварные встык ГОСТ 12821-80 DN 15-500 PN 25
АО «Армапром», АО "Славгородский АЗ"
Материал корпуса
Сталь 20(Л), 25(Л), 15ГСЛ, 20ХН3Л, 12Х18Н9ТЛ, 12Х18Н12МЗТЛ
Температурный диапазон
от -70 °C до 560 °C
Массогабаритные характеристики
DN
L, мм
D, мм
h, мм
H, мм
m, кг
DN, мм
15
L, мм
-
D, мм
95
h, мм
-
H, мм
-
m, г
0,80
DN, мм
20
L, мм
-
D, мм
105
h, мм
-
H, мм
-
m, г
0,99
DN, мм
25
L, мм
-
D, мм
115
h, мм
-
H, мм
-
m, г
1,19
DN, мм
32
L, мм
-
D, мм
135
h, мм
-
H, мм
-
m, г
1,85
DN, мм
40
L, мм
-
D, мм
145
h, мм
-
H, мм
-
m, г
2,19
DN, мм
50
L, мм
-
D, мм
160
h, мм
-
H, мм
-
m, г
2,78
DN, мм
80
L, мм
-
D, мм
195
h, мм
-
H, мм
-
m, г
4,48
DN, мм
100
L, мм
-
D, мм
230
h, мм
-
H, мм
-
m, г
6,58
DN, мм
150
L, мм
-
D, мм
300
h, мм
-
H, мм
-
m, г
12,56
DN, мм
200
L, мм
-
D, мм
360
h, мм
-
H, мм
-
m, г
17,44
DN, мм
250
L, мм
-
D, мм
425
h, мм
-
H, мм
-
m, г
25,74
DN, мм
300
L, мм
-
D, мм
485
h, мм
-
H, мм
-
m, г
33,29
DN, мм
350
L, мм
-
D, мм
550
h, мм
-
H, мм
-
m, г
46,57
DN, мм
400
L, мм
-
D, мм
610
h, мм
-
H, мм
-
m, г
64,81
DN, мм
500
L, мм
-
D, мм
730
h, мм
-
H, мм
-
m, г
88,91
Комплектация электроприводами
DN
Тип привода
Мощность, кВт
Масса, кг
Производитель привода
