+38 (0562) 35-66-24
Задвижки клиновые 31с36нж, 31с536нж, 31с936нж МЗ 13164
17
Задвижки
https://www.promarmatura.info/en
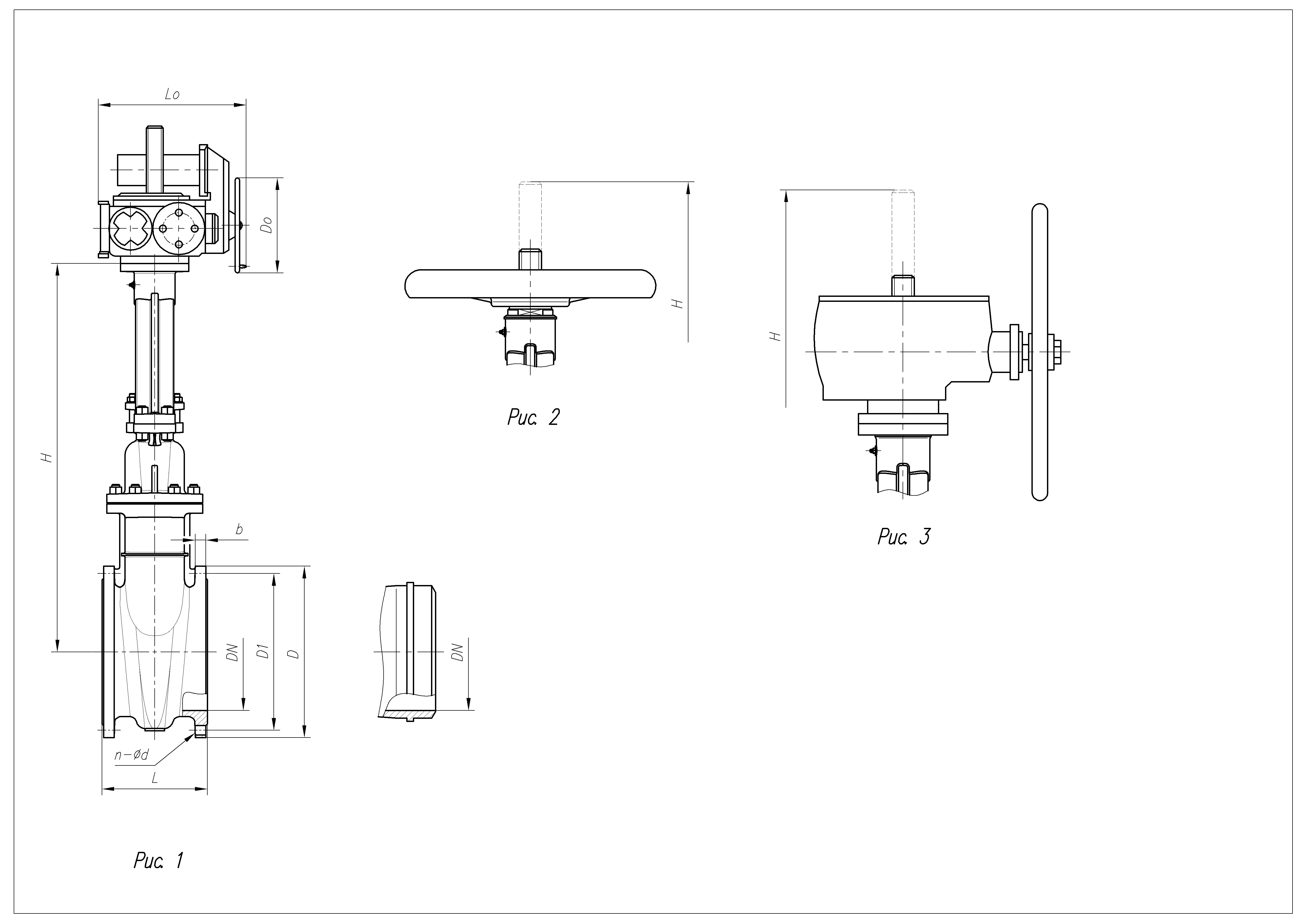
Задвижка клиновая с выдвижным шпинделем 31с36нж, 31с536нж, 31лс36нж, 31лс536нж, 31лс936нж, 31с936нж, 31нж36нж, 31нж536нж, 31нж936нж DN 400-600 PN 6,3
АО « Армапром »
ТУ У 29.1-00218325-012-2001
Аналог
30с36нж, 30с536нж, 30с936нж, 30лс36нж, 30лс536нж, 30лс936нж, 30нж36нж, 30нж536нж, 30нж936нж
Материал корпуса
20Л, 10Х18Н9Л, 12Х18Н9ТЛ, 12Х18Н12М3ТЛ, 06ХН28МДТ-ГР, 20ХН3Л, 15ГСЛ, 20Х5МЛ, 03Х17Н14М3Л
Температурный диапазон
от -70 °C до 565 °C
Массогабаритные характеристики
DN
L, мм
D, мм
h, мм
H, мм
m, кг
DN, мм
400
L, мм
310
D, мм
535
h, мм
-
H, мм
1360
m, г
447
DN, мм
500
L, мм
350
D, мм
640
h, мм
-
H, мм
1580
m, г
1100
DN, мм
600
L, мм
390
D, мм
755
h, мм
-
H, мм
1925
m, г
1535
Комплектация электроприводами
DN
Тип привода
Мощность, кВт
Масса, кг
Производитель привода
| DN, мм | Тип привода | Мощность, кВт | Масса, кг | Производитель привода |
|---|---|---|---|---|
|
400
|
Н-Б1-03 / В-Б1-03
|
1,32 / 1,1
|
53 / 67
|
ЗАО "ПО"Тулаэлектропривод"
|
|
500
|
Н-В-06 / В-В-06
|
4,25 / 4
|
102 / 143
|
ЗАО "ПО"Тулаэлектропривод"
|
|
600
|
Н-В-16 / В-В-09
|
3,2 / 3,0
|
94 / 137
|
ЗАО "ПО"Тулаэлектропривод"
|
