+38 (0562) 35-66-24
Клапан запорный сальниковый угловой 14с22п, 14нж22п СА 24012
20
Клапаны запорные
https://www.promarmatura.info/en
Клапан запорный сальниковый угловой 14с22п, 14нж22п DN 25 PN 25
АО "Славгородский АЗ"
ТУ У 14308859.006-2000
Аналог
14с22п, 14нж22п
Материал корпуса
Сталь 20, сталь 12Х18Н10Т
Температурный диапазон
от -100 °C до 150 °C
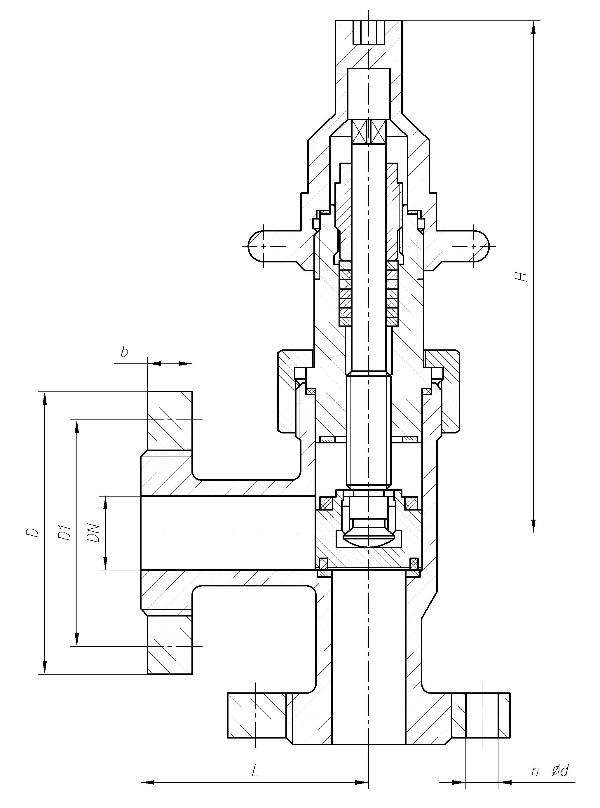
Массогабаритные характеристики
DN
L, мм
D, мм
h, мм
H, мм
m, кг
DN, мм
25
L, мм
80
D, мм
115
h, мм
-
H, мм
204
m, г
5,5
Комплектация электроприводами
DN
Тип привода
Мощность, кВт
Масса, кг
Производитель привода
