+38 (0562) 35-66-24
Клапаны отсечные с МИМ 22с40п, 22нж40п, 22лс40п УФ 96314
22
Клапаны отсечные
https://www.promarmatura.info/en
Клапан отсечной с МИМ УФ 96314 / 22с40п, 22нж40п, 22лс40п DN 50 - 350 PN 40
АО «Армапром»
ТУ У 29.1-00218325-076-2003
Аналог
22с40п, 22нж40п, 22лс40п
Материал корпуса
Сталь 20Л, 25Л, 12Х18Н9ТЛ, 15ГСЛ
Температурный диапазон
от -40 °C до 50 °C
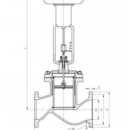
Массогабаритные характеристики
DN
L, мм
D, мм
h, мм
H, мм
m, кг
DN, мм
50
L, мм
230
D, мм
160
h, мм
-
H, мм
992
m, г
78
DN, мм
80
L, мм
310
D, мм
195
h, мм
-
H, мм
705
m, г
100
DN, мм
100
L, мм
350
D, мм
215
h, мм
-
H, мм
740
m, г
116
DN, мм
150
L, мм
480
D, мм
300
h, мм
-
H, мм
1180
m, г
302
DN, мм
200
L, мм
550
D, мм
360
h, мм
-
H, мм
890
m, г
360
DN, мм
250
L, мм
730
D, мм
445
h, мм
-
H, мм
1792
m, г
612
DN, мм
350
L, мм
1070
D, мм
570
h, мм
-
H, мм
2210
m, г
1125
Комплектация электроприводами
DN
Тип привода
Мощность, кВт
Масса, кг
Производитель привода
