ЗАДАТЬ ВОПРОС
+38 (0562) 35-66-24
e-mail: sales@promarmatura.ua

Клапан запорный сальниковый 15с57п, 15нж57нж СА 21095

20
Клапаны запорные
https://www.promarmatura.info
Клапан запорный сальниковый СА 21095 / 15с57п, 15лс57п, 15нж57п, 15с57нж, 15лс57нж, 15нж57нж DN 15-32 PN 100
АО "Славгородский АЗ"
ТУ У 14308859.009-2009
Аналог 
15с57п, 15лс57п, 15нж57п, 15с57нж, 15лс57нж, 15нж57нж
Материал корпуса 
Сталь 20, сталь 12Х18Н10Т, сталь 09Г2С
Температурный диапазон 
от -70 °C до 600 °C
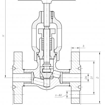
Массогабаритные характеристики
DN
L, мм
D, мм
h, мм
H, мм
m, кг
DN, мм 
15
L, мм 
145
D, мм 
105
h, мм 
-
H, мм 
186
m, г 
6,1
DN, мм 
20
L, мм 
164
D, мм 
125
h, мм 
-
H, мм 
202
m, г 
7,5
DN, мм 
25
L, мм 
190
D, мм 
135
h, мм 
-
H, мм 
202
m, г 
9,5
DN, мм 
32
L, мм 
240
D, мм 
155
h, мм 
-
H, мм 
222
m, г 
14,3
Комплектация электроприводами
DN
Тип привода
Мощность, кВт
Масса, кг
Производитель привода

Вертикальные вкладки

Технические характеристики

Присоединение к трубопроводу — фланцевое с присоединительными размерами по ГОСТ 12815, ГОСТ 33259-2015

                                                 — муфтовое
Герметичность в затворе - ГОСТ 9544-75; ГОСТ 9544-2015
Направление подачи среды — под золотник
Установочное положение – любое

Тип управления – ручное

Применяется в качестве запорного устройства на трубопроводах и оборудовании предприятий различных отраслей промышленности

Рабочая среда – жидкая и газообразная, нейтральная к материалам деталей контактирующих со средой
Температура рабочей среды* — от минус 70 до плюс 600oC

Версия для печати Отправить по email